2262 Port Centre Dr
Medina, OH 44256

Logan

Logan

Logan

Specifications

Logan

4
Bedrooms
2
Stories
2.5
Bathrooms
2754
Sq. Footage

Maybe it's time to take a closer look?

First Floor
welcome to your new

First Floor

Optional patio or deck.  Please note that all square footage figures are approximate.

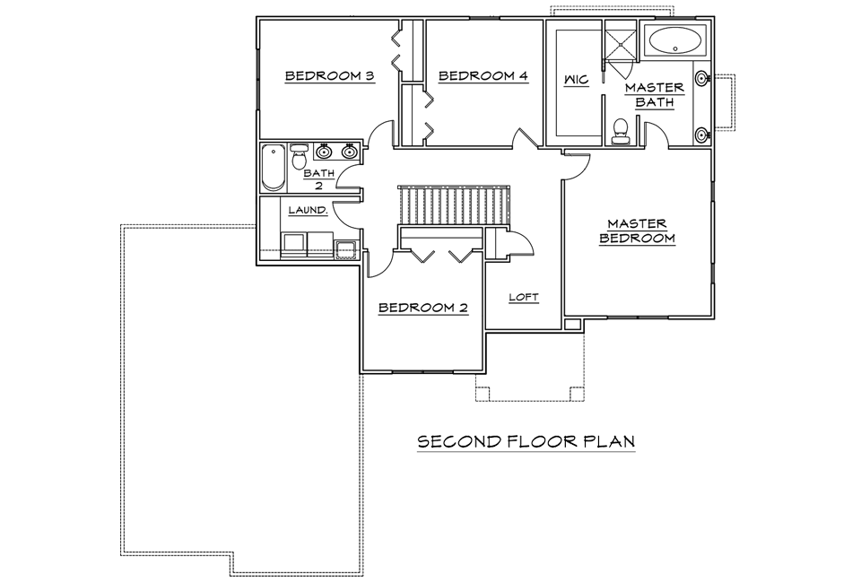
walk upstairs to your

Second Floor

Please note that all square footage figures are approximate.

First Floor

Send Me Information

Send me some more information about the Logan model...


Get in Touch